Forschungsgebäude WSL

Campus im Dialog:
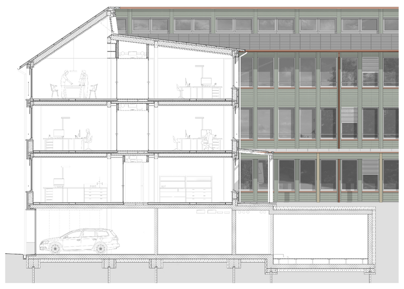
Innovatives Forschen und Arbeiten im hochinstallierten Holzbau

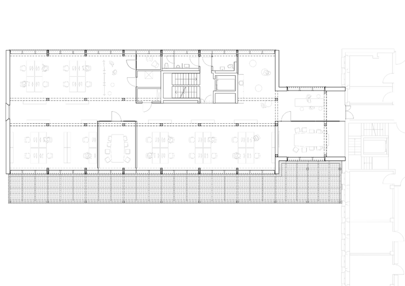
Die Gestaltung der Arbeitsflächen unterstützt unterschiedliche Arbeitsformen von Einzel- über Gruppen- bis hin zu Open-Office-Arbeitsplätzen und berücksichtigt aktuelle Anforderungen wie Homeoffice oder Shared Workspaces.

Flexible Fassadenraster, nachrüstbare Bodenkanäle und nicht tragende Wände ermöglichen eine maximale Anpassungsfähigkeit an wechselnde Nutzerbedürfnisse.